Такие ванны выполняются из водонепроницаемого бетона в двусторонней опалубке. На днище укладывают защитный слой из тощего бетона толщиной 5 см. Бетонирование выполняют бетоном с водоцементным соотношением 0,55 – 0,6 в два этапа: сначала бетонируют днище и стенки на высоту 10 – 20 см (чтобы не нарушалось армирование в углах), а затем – стенки на остальную высоту. Толщина защитного слоя бетона должна быть не менее 3 см, иначе необходимо применять арматуру с горячей оцинковкой. При высоте сбрасывания бетона превышающей 1 м, устанавливают опускной желоб, предотвращающий расслоения бетона. Для уплотнения бетона используют глубинные вибраторы. Рекомендуется применять замедлители схватывания, облегчающие связь укладываемых слоев. Максимальная толщина слоя не должна превышать 40 см.
Перед нанесением внутренней облицовки необходимо испытать водонепроницаемость ванны, для чего заполнить ее водой на 14 суток. При обнаружении течи на поврежденные участки на дне нанести дополнительный слой цементного раствора (только изнутри) или уплотнительную цементную шпаклевку. Трещины заделывают эпоксидной смолой под давлением. Конструкция бортов произвольная. Переливные желоба бетонируют одновременно с ванной. Подающие и выпускные патрубки закладывают в бетон заранее. Формы и размеры ванн произвольные.
Наряду с стационарными применяют переносные ванны. Ниже описаны переносные ванны, имеющие наибольшее распространение. В качестве примеров таких ванн могут быть:
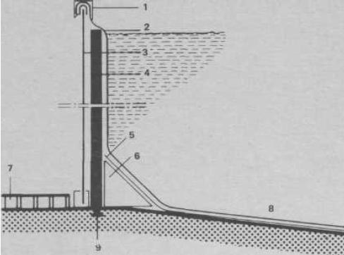
1. Пленочная ванна на металлическом каркасе. Ванна предназначена для наземной установки и выполнена из металлического каркаса с облицовкой. Давление воды воспринимается верхним и нижним бортовыми профилями, соединенными вертикальными связями. Профили обшиты тонколистовой сталью, алюминиевыми листами или полиэфиром. Поверхность ванны выполнена поливинилхлоридной пленки, которая подвешена к верхнему профилю. Из такой же пленки выполнено дно ванны. Конструктивные элементы каркаса рекомендуется выполнять из алюминия (для наземной установки ванны). При наземной установке ванны требуется теплоизоляция стен, так как тонкая пленочно-листовая конструкция обладает очень высокой теплопроводностью. Лучше всего применять теплоизоляционные маты из полиуретана толщиной 1 – 2 см, которые укладывают между обшивкой и пленкой (рис.1).

Рис.1. Наземная ванна с теплоизоляцией.
1 – бортовой фильтр, 2 – поливинилхлоридная пленка толщиной не менее 0,6 мм, 3 – листовая рубашка, 4 – теплоизоляционные маты толщиной не менее 5 мм, 5 – пленка с войлочным основанием, 6 – песчаный клин или пеноматериал, 7 – одерновка, 8 – уклон к трапу, 9 – при установке бортового профиля выдерживать горизонтальность.
2. Пленочная ванна с каркасом из полиэфира. Ванны выполняют так же, как пленочные ванны со стальным каркасом, но здесь несущей конструкцией являются полиэфирные фасонные элементы, покрытые акриловой смолой. Выпускаются круглые ванны диаметром 6,4 и 7,3 м. Ванны с каркасом из полиэфира не подвержены коррозии, но стоят значительно дороже, чем такие же ванны с металлическим каркасом.
3. Ванна из легированной стали с пленочным днищем. Конструкция аналогична пленочной ванне с металлическим каркасом, однако рубашкой ванны служит тонколистовая сталь, связанная поливинилхлоридной пленкой днища. Максимальная глубина ванн (высота стенок) 1,5 м, глубина в центре до 1,8 м. круглый план диаметром 3 – 14 м, овальный – 5,0 Х 5,9 м. Поверхностью ванны служит мягкая поливинилхлоридная пленка толщиной 0,5 – 0,8 мм.